Będzie zaplecze sanitarne w porcie – umowa podpisana!
Ścinawski samorząd rozwija przestrzeń portową! Po zleconej budowie placu zabaw w kształcie statku, przyszedł czas na inwestycję dotyczącą zaplecza sanitarnego na nadodrzańskim nabrzeżu. Wszystko w ramach projektu „Rewitalizacja obszarów miejskich wraz z działaniami na sieci wodociągowej”. W minionym tygodniu, burmistrz Krystian Kosztyła podpisał umowę na realizację przedmiotowego zadania, które jest uzupełnieniem zaplanowanego wcześniej zagospodarowania całego terenu. Wartość zawartego kontraktu to kwota ponad 2,5 mln zł brutto, a termin wykonania przedsięwzięcia w formule zaprojektuj i wybuduj minie po 8 miesiącach!
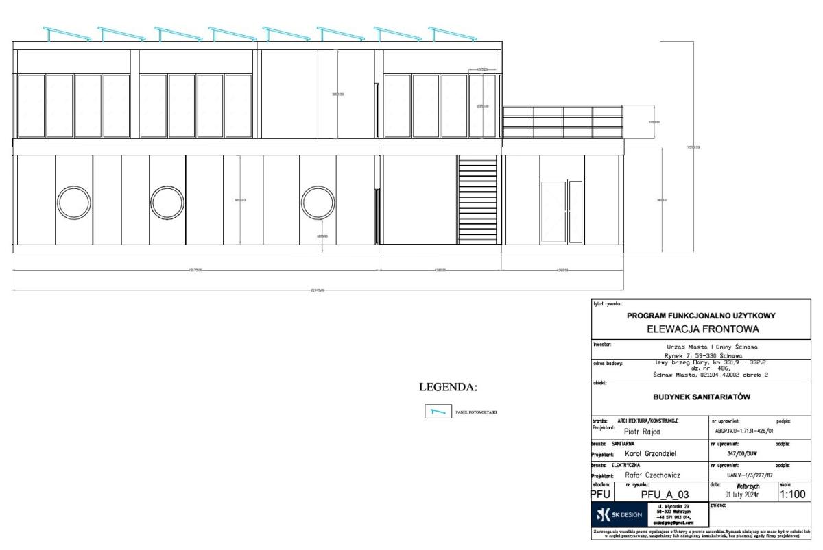
Gmina Ścinawa podpisała umowę z firmą INI Konrad Warda z Warszawy na budowę nowoczesnego, kontenerowego budynku sanitariatów przy przystani miejskiej. W pierwszym etapie wykonawca ma przygotować szczegółową dokumentację oraz uzyskać pozwolenie na budowę, po czym przystąpi do robót w terenie, oczywiście zgodnie z zatwierdzonym oraz skonsultowanym ze zleceniodawcą projektem. Obiekt powstanie w sąsiedztwie pomieszczenia technicznego, w którym znajdują się m.in. pompy kanalizacji podciśnieniowej, wybudowanej w ostatnim okresie, podczas inwestycji dotyczącej portu. Należy podkreślić, że przedsięwzięcie jest współfinansowane z dotacji pozyskanej wcześniej z Programu Inwestycji Strategicznych „Polski Ład”, co pozwala lokalnemu samorządowi skutecznie realizować plany rozwojowe przy ograniczonym udziale środków własnych.
Nowy budynek sanitariatów będzie ważnym uzupełnieniem infrastruktury ścinawskiego portu, miejsca, które z roku na rok zyskuje na popularności, jako przestrzeń rekreacyjna oraz centrum wydarzeń kulturalnych, sportowych oraz różnych imprez plenerowych. Dzięki funkcjonalnemu i estetycznemu zapleczu sanitarnemu korzystanie z nadodrzańskiej przystani stanie się jeszcze wygodniejsze i przyjemniejsze, zarówno dla mieszkańców, turystów wodniaków, jak i gości.


